咨询电话:400-128-7080
提示:丛一楼装饰向您承诺,您的个人隐私我们会严格保密!
来源:丛一楼装饰 更新时间: 2021-12-03
现代简约
案例风格
二居室
案例户型
110㎡
案例面积
市内楼盘
案例楼盘
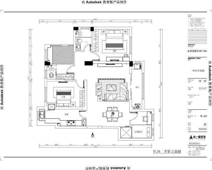
设计师:柯锋
楼 盘:友邦皇家公馆
面 积:109㎡
户 型:两室两厅
风 格:现代简约
造 价:7.5万不含主材
用 材:乳胶漆、微晶石、茶镜、壁纸、地砖、地板、….
设计说明:
本案设计根据客户要求以简洁实用为主的 现代风格,不过分强调背景与造型的繁复。简单而巧妙的运用原有的柱梁进行综合作为客餐厅的背景,然后加以点缀,旨在营造现代风格的简约而不简单的时尚氛围。





