咨询电话:400-128-7080
提示:丛一楼装饰向您承诺,您的个人隐私我们会严格保密!
来源:丛一楼装饰 更新时间: 2021-11-13
现代简约
案例风格
二居室
案例户型
110㎡
案例面积
市内楼盘
案例楼盘
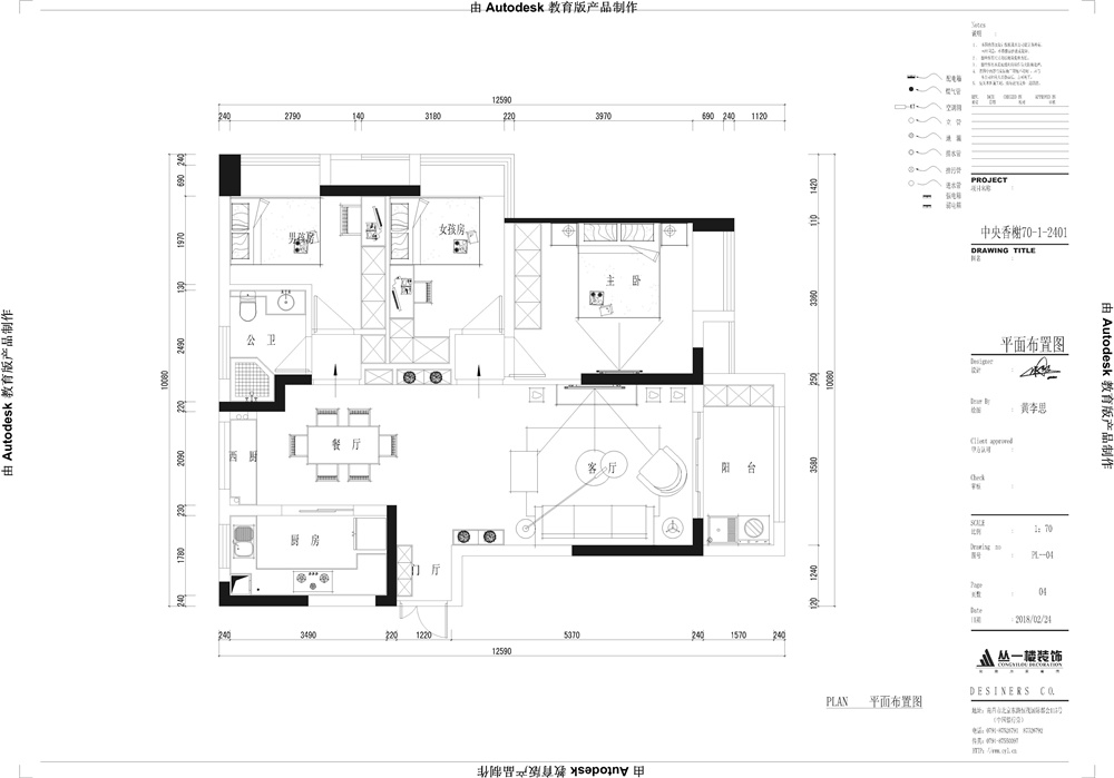
项目地址:中央香榭70栋
设计师: 饶国良
设计风格:小美
户型:三室两厅
面积:104
工程造价:9.8万
设计理念:暖色系氤氲出一室温馨
布艺与木质散发着自然质朴的味道
金属的光泽里时光荏苒
我们的家,总有美丽的暗香浮动
时刻能触摸得到幸福
客厅

卧室

原始结构图

平面布置图


