咨询电话:400-128-7080
提示:丛一楼装饰向您承诺,您的个人隐私我们会严格保密!
来源:丛一楼装饰 更新时间: 2021-11-09
现代简约
案例风格
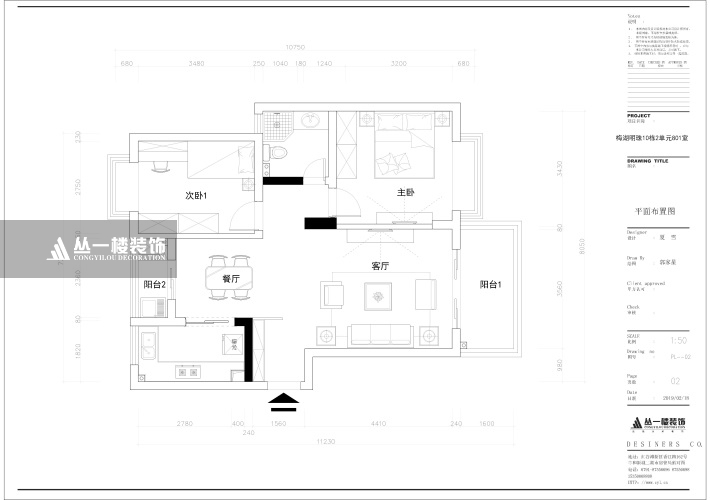
二居室
案例户型
110㎡
案例面积
市内楼盘
案例楼盘





设计师:夏 雪
楼盘:九颂山河
户型:三室二厅
面积:100平方
风格:现代
装修项目:
主材:地砖、瓷砖、洁具、灯具、整体厨房,门等
设计说明:该设计的特色是将房屋的原材料、色彩搭配、灯光照明等进行最大化的简化!但就是这些相当简单的家居装饰,通过设计师的编排设计,往往可以起到很好的视觉效果。

