咨询电话:400-128-7080
提示:丛一楼装饰向您承诺,您的个人隐私我们会严格保密!
来源:丛一楼装饰 更新时间: 2020-09-17
现代简约
案例风格
三居室
案例户型
125㎡
案例面积
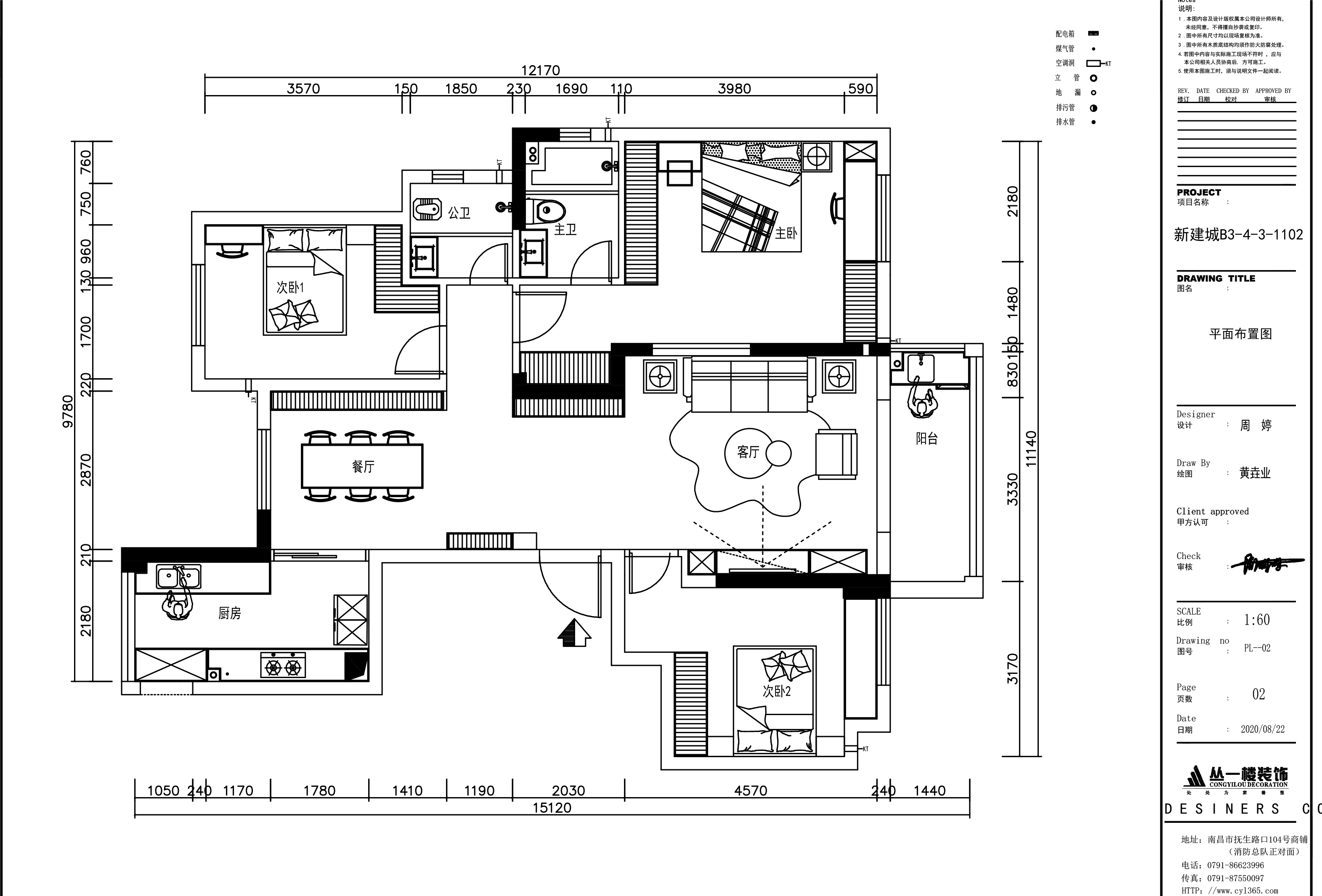
新建城
案例楼盘
设计师:周婷
楼盘:新建城B3区4栋3单元1102室
面积:125平方米
户型:三室两厅两卫
风格:现代
设计说明:通过与业主的沟通后,本作品最终定位为现代风格。现代风格是比较流行的一种风格,追求时尚与潮流,非常注重居室空间的布局与使用功能的完美结合。重视功能和空间组织,注重发挥结构构成本身的形式美,造型简洁,反对多余装饰,崇尚合理的构成工艺;尊重材料的特性,讲究材料自身的质地和色彩的配置效果。

原始平面图

平面结构图

客厅效果图
厨房效果图



卧室效果图

